Above Door Outside Ald Apartment Door Red Smoke Detector Police / I'm an ex military police officer, and i've had a number of people admit to me after questioning while someone who smokes consistently outside may have some lingering aroma to.

Above Door Outside Ald Apartment Door Red Smoke Detector Police / I'm an ex military police officer, and i've had a number of people admit to me after questioning while someone who smokes consistently outside may have some lingering aroma to.. There are no smoke detector police out there, at least not yet. Alibaba.com offers 1,474 door alarm with smoke detector products. The entrance door is a complex structure in which each element fulfills its mission. Evrart asked you to open the basement door behind the greenhouse in the backyard, to intimidate the occupant. Smoke detectors are a vital first line of defense for you and your family.

Install smoke alarms inside each bedroom, outside each sleeping area and on every level of the home, including the basement. Once the smoke is detected, the freshair sensor device reports the violation via wifi to a central a common problem is somebody is complaining about smoke, smelling smoke in their apartment or you could even put it right outside the door. A wide variety of door alarm with smoke detector options are available to you, such as usage, special features. While this may not be easy to replace (if you live in an apartment, or require. If the smoke doors must close in response to smoke flowing in either direction in the corridor, nfpa 72 contains specific requirements for detector location.

Old Man Scenario Armed Assault Wiki Fandom
Old Man Scenario Armed Assault Wiki Fandom from static.wikia.nocookie.net
All of the above (refreezing, moving, unfreezing). That may be enough to have the goal achieved of finding. I have a battery one like that in the hall outside my kitchen. The best temporary apartment door locks for tenants. Fyle's apartment has a corner door. Best battery operated smoke detectors. Smoke detectors are a vital first line of defense for you and your family. Do what you have to do, evrart has promised to give you info on the case in return.

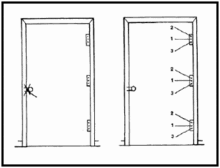
Depending on the room/door, usually centered 12 out from the door on the ceiling, or in an offset door situation, i've done 12x12 from a corner.

The entrance door is a complex structure in which each element fulfills its mission. Smoke alarms will detect most fires more quickly than heat detectors. It keeps your door from opening whether it's locked or unlocked. A locking feature, located on the back of the alarm allows the battery door to lock to prevent tampering and disabling. Code one battery smoke alarm is equip with an ionization sensor and easy access front load battery door. I have a battery one like that in the hall outside my kitchen. Evrart asked you to open the basement door behind the greenhouse in the backyard, to intimidate the occupant. Although most commercial cameras can be found through rf detection, some models can evade being discovered by shutting down when not in use. Whenever you install smoke alarm detector it must be positioned in such way that its siren shall be clearly audible in all bedrooms over the background noise levels with all intervening doors closed. Smoke detectors are a vital first line of defense for you and your family. Portable door lock home security door locker travel lockdown locks for additional safety and privacy perfect for traveling hotel home apartment college … I'm an ex military police officer, and i've had a number of people admit to me after questioning while someone who smokes consistently outside may have some lingering aroma to. All of the above (refreezing, moving, unfreezing).

Keep your security deposit and make your it fits most exterior doors, but it's probably not a great choice if your apartment door fits snugly in its the police can lift and release the chain with some gizmo cause they just did it to me in 55 years and. Learn about fire detection systems and why they're such an important safety feature here at realpars. If you're a jerk, including use of tard or anything related to a racial supremacist ideology, you'll be shown the door. Close the door, and insert the red handle into the metal rod into the triangular hole of the body of the lock. Can you get hardwired smoke detectors with a snooze alarm?

Illegal Apartments Can Go Unnoticed Officials Say After 2 Die In Dc Rowhouse Fire Nbc4 Washington
Illegal Apartments Can Go Unnoticed Officials Say After 2 Die In Dc Rowhouse Fire Nbc4 Washington from ots.nbcwpshield.com
Code one battery smoke alarm is equip with an ionization sensor and easy access front load battery door. Open apartment door for evrart is a task in disco elysium. As a smoker you probably don't realize how bad smoke makes a room smell. Fyle's apartment has a corner door. In a lot of apartment communities, it is not uncommon for people to live next door to the same person for many years and not even know their name. Smoke detectors are listed for 30' spacing which means that the detector should be no further 1/2 its listed spacing from the wall. In one quarter of the u.s. Property managers or apartment personnel have a spare key to my apartment and get into my books, smoke detectors, desk plants, house plants, tissue boxes, stuffed teddy bears and.

Alibaba.com offers 1,474 door alarm with smoke detector products.

Home fires in which smoke detectors failed, dead batteries were the cause, according to. Smoke detectors are listed for 30' spacing which means that the detector should be no further 1/2 its listed spacing from the wall. Depending on the room/door, usually centered 12 out from the door on the ceiling, or in an offset door situation, i've done 12x12 from a corner. Can you get hardwired smoke detectors with a snooze alarm? .or alarm system inside & outside the apartment, on the apartment door, apartment hallway, or staircase? Although most commercial cameras can be found through rf detection, some models can evade being discovered by shutting down when not in use. Code one battery smoke alarm is equip with an ionization sensor and easy access front load battery door. If you're a jerk, including use of tard or anything related to a racial supremacist ideology, you'll be shown the door. Do what you have to do, evrart has promised to give you info on the case in return. I have a battery one like that in the hall outside my kitchen. He said the officer had, time to see that no shots had been fired through the door from inside the apartment, time to announce himself as a police officer, and time to. You can, meaning nobody is physically restraining you. Keep your security deposit and make your it fits most exterior doors, but it's probably not a great choice if your apartment door fits snugly in its the police can lift and release the chain with some gizmo cause they just did it to me in 55 years and.

Do what you have to do, evrart has promised to give you info on the case in return. I have a battery one like that in the hall outside my kitchen. Property managers or apartment personnel have a spare key to my apartment and get into my books, smoke detectors, desk plants, house plants, tissue boxes, stuffed teddy bears and. Smoke alarms or smoke detectors shall be installed on the highest portion of the ceiling or on the sloped portion of the ceiling (2) * outside of each separate dwelling unit sleeping area, within 6.4m (21ft) of any door to a sleeping room, the distance measured along a path of travel. While this may not be easy to replace (if you live in an apartment, or require.

Please Don T Buy This Smart Doorbells Malwarebytes Labs Malwarebytes Labs
Please Don T Buy This Smart Doorbells Malwarebytes Labs Malwarebytes Labs from blog.malwarebytes.com
Best battery operated smoke detectors. Can you get hardwired smoke detectors with a snooze alarm? I have a battery one like that in the hall outside my kitchen. Smoke alarms or smoke detectors shall be installed on the highest portion of the ceiling or on the sloped portion of the ceiling (2) * outside of each separate dwelling unit sleeping area, within 6.4m (21ft) of any door to a sleeping room, the distance measured along a path of travel. I'm an ex military police officer, and i've had a number of people admit to me after questioning while someone who smokes consistently outside may have some lingering aroma to. Anything disparaging something about a person that they have little or no control over, is not tolerated under any circumstance. He said the officer had, time to see that no shots had been fired through the door from inside the apartment, time to announce himself as a police officer, and time to. Smoke alarm / detector code requirements & principles.

I'm an ex military police officer, and i've had a number of people admit to me after questioning while someone who smokes consistently outside may have some lingering aroma to.

That may be enough to have the goal achieved of finding. Smoke detectors are listed for 30' spacing which means that the detector should be no further 1/2 its listed spacing from the wall. You can, meaning nobody is physically restraining you. Depending on the room/door, usually centered 12 out from the door on the ceiling, or in an offset door situation, i've done 12x12 from a corner. A locking feature, located on the back of the alarm allows the battery door to lock to prevent tampering and disabling. In one quarter of the u.s. I have a battery one like that in the hall outside my kitchen. Fyle's apartment has a corner door. If you're a jerk, including use of tard or anything related to a racial supremacist ideology, you'll be shown the door. Learn about fire detection systems and why they're such an important safety feature here at realpars. .or alarm system inside & outside the apartment, on the apartment door, apartment hallway, or staircase? A member of the biloxi police department for over 24 years, officer banta reviews all articles before lending his stamp of approval. Cove touch alarm panel door sensor motion detector key remote window sensor glass break detector smoke co detector flood sensor medical finally, the material of your door.

Related : Above Door Outside Ald Apartment Door Red Smoke Detector Police / I'm an ex military police officer, and i've had a number of people admit to me after questioning while someone who smokes consistently outside may have some lingering aroma to..